Lavori in corso

Ristrutturazione edificio commerciale Ferrara (FE)

Anno 2026 – Incarico: Progettazione preliminare, definitiva ed esecutiva – Committente: privato.

2 FE
previous arrow
next arrow

Ristrutturazione edificio commerciale Ferrara (FE)

Anno 2026 – Incarico: Progettazione preliminare, definitiva ed esecutiva – Committente: privato.

Ristrutturazione edificio residenziale Monselice (PD)

Anno 2026 – Incarico: Progettazione preliminare, definitiva ed esecutiva – Committente: privato.

Ristrutturazione edificio residenziale Chioggia (VE)

Anno 2026 – Incarico: Progettazione preliminare, definitiva ed esecutiva – Committente: privato.

Ristrutturazione edificio residenziale Vescovana(PD)

Anno 2026 – Incarico: Progettazione preliminare, definitiva ed esecutiva – Committente: privato.

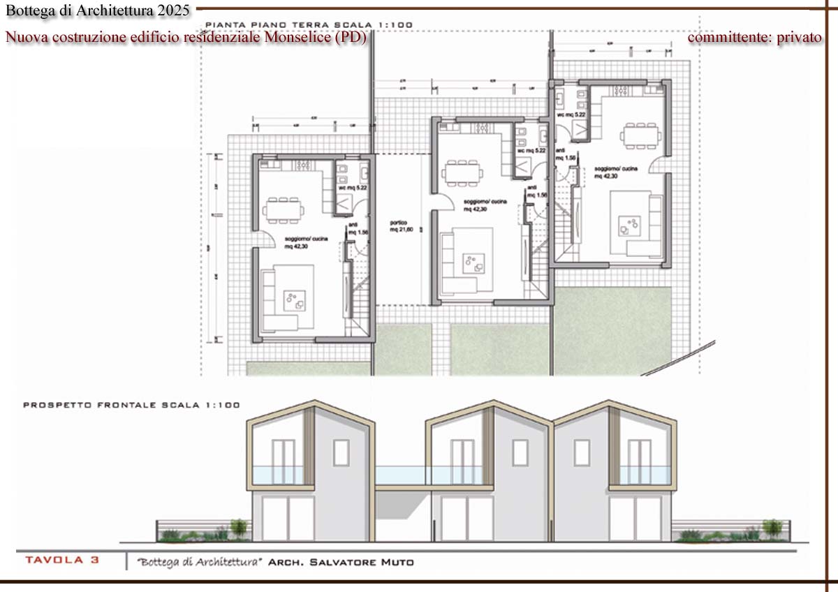
Nuova costruzione edificio residenziale Monselice (PD)

Anno 2025 – Incarico: Progettazione preliminare, definitiva ed esecutiva – Committente: privato.

Tavola 1 Monselice trifamiliare
previous arrow
next arrow

Nuova costruzione edificio residenziale Monselice (PD)

Anno 2025 – Incarico: Progettazione preliminare, definitiva ed esecutiva – Committente: privato.

Tavola 1 Monselice quadrifamiliare
previous arrow
next arrow

Ristrutturazione edilizia immobile residenziale – Solesino (PD)

Anno 2025 – Incarico: Progettazione preliminare, definitiva ed esecutiva – Committente: privato.

Tavola 1 Solesino
previous arrow
next arrow

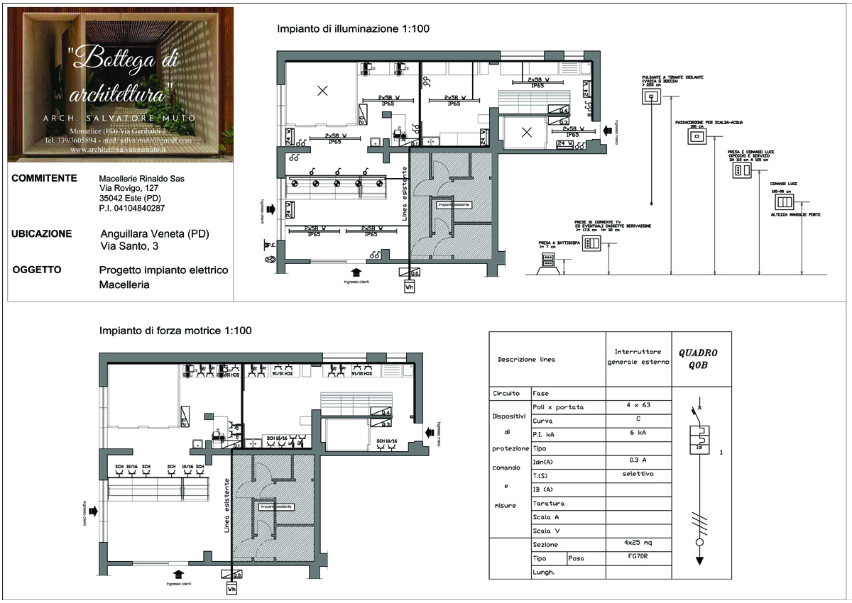
Ristrutturazione per installazione negozio Macelleria Chioggia (VE)

Anno 2024 – Incarico: Progettazione preliminare, definitiva ed esecutiva – Committente: privato.


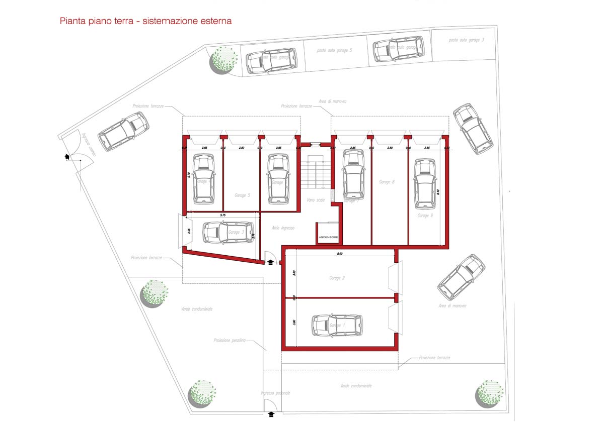
Ristrutturazione Garage Este (PD)

Anno 2024 – Incarico: Progettazione preliminare, definitiva ed esecutiva – Committente: privato.


Ristrutturazione per installazione negozio Macelleria Piazzola del Brenta (PD)

Anno 2024 – Incarico: Progettazione preliminare, definitiva ed esecutiva – Committente: privato.


Sistemazione esterna villa Unifamiliare Pernumia (PD)

Anno 2024 – Incarico: Progettazione preliminare, definitiva ed esecutiva – Committente: privato.


Ristrutturazione e cambio destinazione d’uso uffici Este (PD)

Anno 2024 – Incarico: Progettazione preliminare, definitiva ed esecutiva – Committente: privato.



Ristrutturazione per installazione negozio Ortofrutta Rovigo (RO)

Anno: 2024 —- Incarico: Progettazione preliminare, definitiva ed esecutiva —- Committente: Privato


Ristrutturazione Garage Este (PD)

Anno: 2024 —- Incarico: Progettazione preliminare, definitiva ed esecutiva —- Committente: Privato


Sistemazione immobile residenziale sito in Pernumia (PD) 

Anno: 2023 —- Incarico: Progettazione preliminare, definitiva ed esecutiva —- Committente: Privato

6C
previous arrow
next arrow

 Ristrutturazione immobile commerciale per apertura nuovo negozio di vicinato Anguillara Veneta (PD)

Anno: 2023 —- Incarico: Progettazione preliminare, direzione lavori, sicurezza cantiere —- Committente: Azienda

2 (1)
previous arrow
next arrow

 Ristrutturazione immobile residenziale in Padova

Anno: 2023 —- Incarico: Progettazione preliminare

4 (1)
previous arrow
next arrow

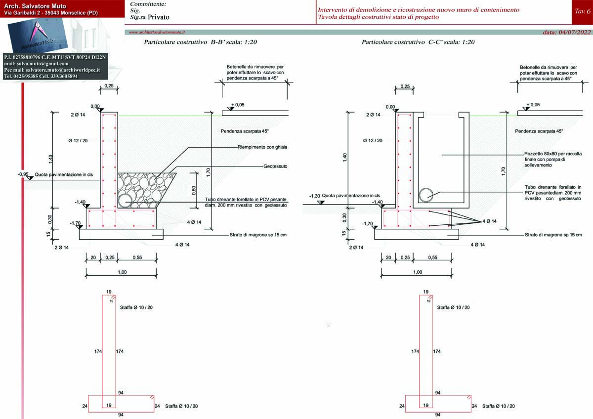
Intervento di demolizione e ricostruzione nuovo muro di contenimento

Anno: 2022 —- Incarico: Progettazione preliminare, definitiva ed esecutiva, direzione lavori, sicurezza cantiere —- Committente: Privato

1 (5)
previous arrow
next arrow

Progetto ristrutturazione immobile commerciale Padova Corso Milano 86 Bisteka

Anno: 2022 —- Incarico: Progettazione preliminare, definitiva ed esecutiva, direzione lavori, sicurezza cantiere —- Committente: Privato

13
previous arrow
next arrow

Ristrutturazione immobile commerciale Adria Via Monsignor Pozzato 47

Anno: 2022 —- Incarico: Progettazione preliminare, definitiva ed esecutiva, direzione lavori, sicurezza cantiere —- Committente: Privato

14
previous arrow
next arrow

Nuova costruzione edificio residenziale condominiale “Residenza Matteotti” Monselice (PD) 

Anno: 2022 —- Incarico: Progettazione preliminare, definitiva ed esecutiva, direzione lavori, sicurezza cantiere —- Committente: Privato

1 (1)
previous arrow
next arrow

Ristrutturazione edilizia per nuova formazione negozio di vicinato Chioggia (VE)

Anno: 2021 —- Incarico: Progettazione/Direzione lavori/Sicurezza/Pratiche SUAP apertura attività —- Committente: Privato

TACOLA 1
previous arrow
next arrow

Demolizione e nuova costruzione edificio unifamiliare Monselice (PD)

Anno: 2021 —- Incarico: Progettazione/Direzione lavori —- Committente: Privato

TAVOLA INIZIO LAVORI (1)
previous arrow
next arrow

Ristrutturazione edilizia “casa vacanze” Pinarella di Cervia (RA)

Anno: 2021 —- Incarico: Progettazione/Direzione lavori —- Committente: Cooperativa sociale “La rosa blu” A.R.L.

Tav. 1 Pinarella di Cervia
previous arrow
next arrow